- Todos
- Topografia
Portfólio
Consulte alguns dos nossos trabalhos realizados pelo nosso gabinete

Levantamento Scan Laser de Habitação
Monsanto
Conjunto Habitacional Norte-Sul
Loures


Circular Rodoviária
Seixal
Verificação Estrutural
São Marção - Oeiras


Circular Rodoviária
Felgueiras
Torre do Relógio
Castelo Branco


Praia do Tamariz
Cascais
Barragem de Gebelim
Alfândega da Fé


Metro Praça de Espanha
Lisboa
Palácio Vilalva
Lisboa


Mercado Municipal
Castelo Branco
Pingo Doce Horta das Figueiras
Évora


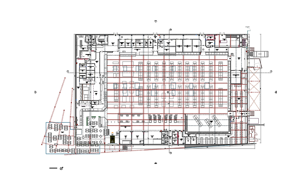
Hospital Lusíadas - Lisboa
Lisboa
Casino Estoril - Levantamento Topográfico
Cascais


Requalificação do Parque Manuel Braga
Coimbra
Levantamento topográfico
Alcântara


Viaduto da Qta da Fonte
Oeiras
Construção do Edifício da Turbina
Celtejo


Levantamento topográfico de estruturas
Celtejo
Implantação de Viaduto da Cruz das Oliveiras
Monsanto


Levantamento topográfico
Levantamento topográfico do Largo das Festas
Sobral do Campo


Ampliação da Hovione
Sistema Elevatório de S. Teotónio


Implantação de Fabrica de Pellets
Implantação de Fornalha
Proença-a-Nova


Marcação da Incubadora de Empresas
Nisa
Lev. topográfico de fachada
Campo Pequeno


Lev. topográfico do prolongamento da VICEG
Guarda
Poligonal de Apoio, EN346
Penamacor


Ampliação do Hospital de Castelo Branco
Linha do Leste
Elvas


Marcação de Parque de estacionamento
Somincor
Implantação de Estrutura


Implantação de Marcos de Estrema
Lev. topográfico
Castelo Branco


Lev. topográfico de terreno
Portalegre
Levantamento topográfico
Alcântara

